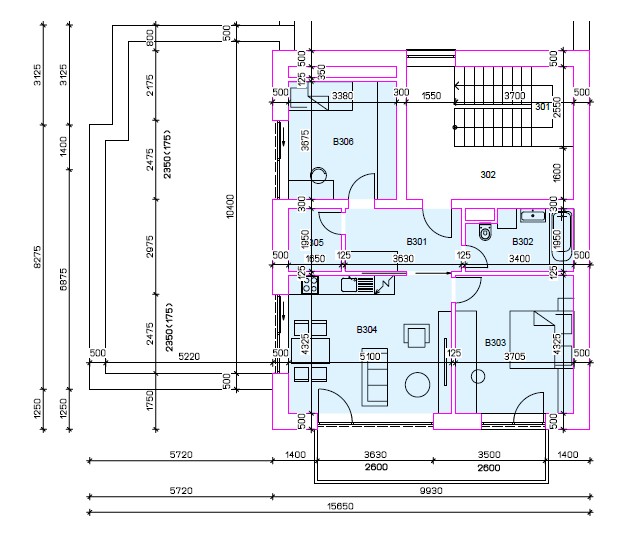
Byt č.C05
3-izbový byt C05
Celková výmera:
74,5 m2
Počet izieb:
3+kk
- Poschodie: 3 NP
- Počet izieb: 3
- Celková plocha bytu: 74,5 m2
- Loggia: 4 m2
- Pivnica: áno (na 1.NP)
- Parkovacie miesto: áno (garáž 1.NP)
- Číslo bytu: C05
- Stav:
Byt je na predaj
Aktuálna cena:
349 905€
Príplatok za garáž 24,5 m2 + vonkajšie státie:
45 000€
alebo
Príplatok za dvojgaráž 39,8 m2 + vonkajšie státie:
cena bude určená