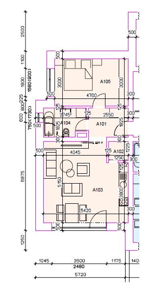
Byt č.B01
2-izbový byt B01
Celková výmera:
50,5 m2
Počet izieb:
2+kk
- Poschodie: 1 NP
- Počet izieb: 2
- Celková plocha bytu: 50,5 m2
- Loggia: 3,5 m2
- Pivnica: áno (na 1.NP) 4m2
- Parkovacie miesto: áno (garáž 1.NP)
- Číslo bytu: B01
- Stav:
Byt je na predaj
Aktuálna cena:
239 001€
Príplatok za garáž 24,5 m2 + vonkajšie státie:
45 000€
alebo
Príplatok za dvojgaráž 39,8 m2 + vonkajšie státie:
cena bude určená